Medence felszín feletti Málta Weka pool
2 180 000 Ft
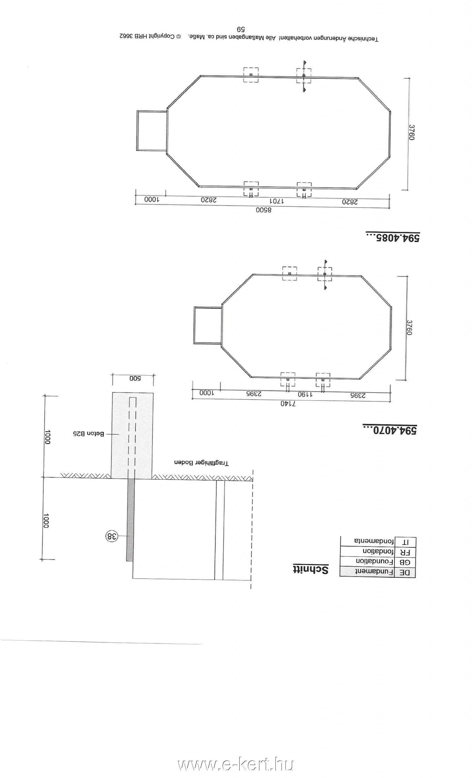
Weka Málta kerti medence 25,6 m3. Felszín feletti Weka Pool úszómedence építés 376 x 850 cm
Német minőség, tartósság
- Szaktanácsadás és ügyfélszolgálat
- Országos kiszállítás
- Ingyenes átvétel a raktárban
Medence felszín feletti Málta Weka pool
Medence MÁLTA úszómedence
Weka Pool 45 mm vastag tömörfa-gerendavázzal
Alapméretek:
- Málta kerti medence térfogata 25,6 m3
- Medence teljes magasság: 120 cm
- Kültéri úszómedence méretei: szélessége x hosszúság 378 x 850 cm /gépházzal együtt/
Általános információk:
- Felszín feletti masszív gerendavázas medence építés gyorsan, költséghatékonyan 376 x 850 cm méretben ( technikai egységgel gépházzal együtt, lásd alaprajz )
- Kerti medencénket komplett víztisztító homokszűrő berendezéssel együtt szállítjuk az alaprajz szerinti technikai helységgel együtt.
- 45 mm vastag, impregnált /telített faanyagból tömörfa gerenda medenceváz-szerkezet. Az ellenálló, masszív gerendaváz megfelelő telepítés és ápolás mellett 10-12 évig is kertje dísze lehet. Az úszómedence faanyagát időnként be kell ereszteni kültéri padló olajjal (deck oil) amelyhez mi a Remmers kültéri padló olajat ajánljuk.
- Úszómedence peremére körben 70 mm széles fogódzkodó profil kerül felszerelésre
- Vízfelszín-tisztító szkimmer / fölöző készlettel (durva szita, 2 x 3 m csatlakozótömlő )
- Medence fóliánk védelme érdekében textilfátyol alátétet alkalmazunk
- Fólia vastagsága 0,6 mm ; fólia színe kék; élettartama 5-10 év között
- Műszaki helyiséggel, korláttal, és fogódzkodóval ellátott falépcsővel együtt szállítjuk
- 4 horganyzott támasszal bebetonozásra ( alapozási terv szerint a betonlemez elkészítéséhez ezeket az acél támokat előre el tudjuk küldeni önnek )
Gyakori kérdések telepítésével kapcsolatban: Medence építéssel kapcsolatos válaszok itt
Opcionálisan napozó teraszokkal, takaró ponyvával, nemesacél medence létrával vagy akár hőszivattyúval is bővítheti kerti medencéjét. Opcionális megrendelhető medence kiegészítők
Medencéink ideális és biztonságos megoldást nyújtanak kisgyermekes családoknak, valamint olyan helyszíneken ahol magas a talajvíz szint.
Megfelelő teherhordó képességű teherhordó felületet kell képezni, amely legyen vízszintes és sima ! Praktikusan 10 cm döngölt sóderágy + 10-15 cm simított vasalt betonlemezt javaslunk. Természetesen térkövezett felület is megfelelő lehet de az jóval drágább mint a betonozott alap.
- Magas talajvízszint esetén is könnyen megépíthető gerendavázas Weka Pool
- Nagyságrenddel olcsóbb a kivitelezés, mintha földbe süllyesztett kivitelű medencét építtetne
- Kisgyerekes családok esetén fontos a biztonság. A gyerek nem tud beleesni a medencébe !
- Ha néhány év múlva mégis megunják, vagy elköltöznek, a szerkezet szétszedhető és újra összeszerelhető egy másik helyszínen
- Weka úszómedence természetes fa gerendaváza minden kertben jól néz ki és harmonikusan illeszkedik a környezetbe.
További információk
| Tömeg | 947 kg |
|---|---|
| Méretek | 378 × 850 × 120 cm |
| Telepítési feltételek | Medencénk alapozásához a leginkább ajánlott megoldás: vasalt térbeton alap, de megfelelő minőségű, teherbírású talaj esetén 30 cm döngölt sóderágy + 10cm homok is megfelelő lehet. Vigyázni kell arra, hogy az alapozás ne mosódhasson alá ! |

























Málta_Medence_kiegészítők+tételes munkadíjak_2025




